hide
Would you like to visit our mobile site?
Olmsted Network
Olmsted Online
Projects of the Olmsted Firm
Explore the Map
Advanced Search
Gallery
Timeline
Blog
FAQs & More
FAQs
Glossary & Links
Locales
Tours, Trails & Videos
Fair Use Policy
About Olmsted Network
Home
>
Project Details Page
>
Plan Detail
Plan Detail
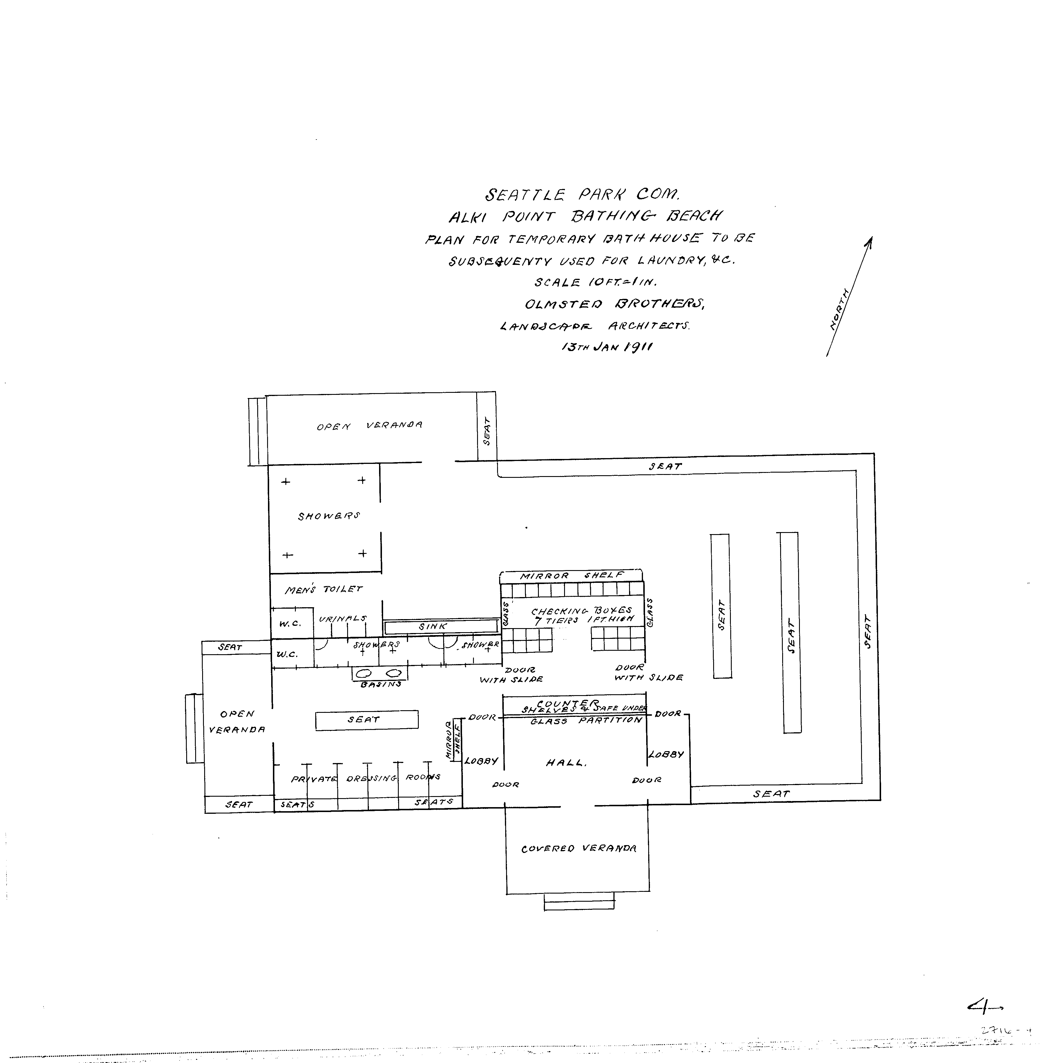
Plan for Alki Beach Park
Plan
Job Number
02716
Plan Number
04
Source
ONHS
Title
Seattle Park Commission / Alki Point Bathing Beach / Plan for temporary bath house to be / Subsequently used for laundry, etc. /
Scale
10'=1
Size
11 x 12
Date(s)
13JAN1911
Downloads
Small PNG (51 KB)
Hi-Res JPEG (711 KB)
Print Report
Disclaimer: Conditions of authorized download and use of digital copies of materials on this site are outlined in the
Fair Use Policy
.
Plan Inventory Notes
-- no data --
Plan Description
-- no data --
<
>